
A single level home with 3 bedrooms, 2.5 bathrooms, and a 3-car garage.

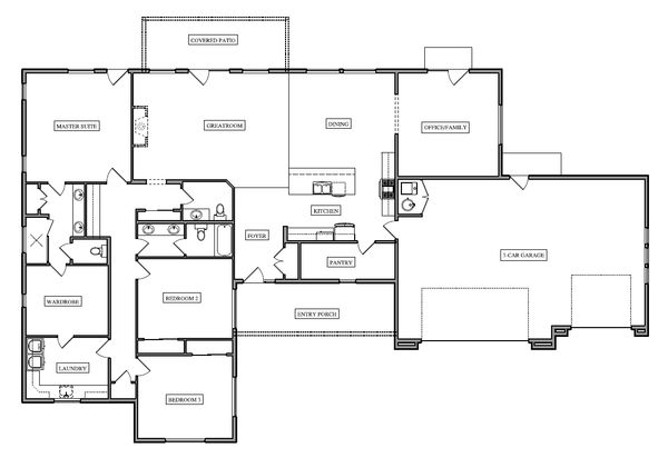
A single level home with 3 bedrooms, 2 bathrooms, and a 3-car garage.

A single level home with 2 bedrooms, 2 bathrooms and an attached casita with its own entrance that includes 1 bedroom and 1 bathroom. 2 car garage with attached covered RV garage.

A Single level home with 4 bedrooms, 4.5 bathrooms, courtyard entryway, and attached RV garage.
We use cookies to analyze website traffic and optimize your website experience. By accepting our use of cookies, your data will be aggregated with all other user data.